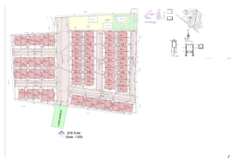
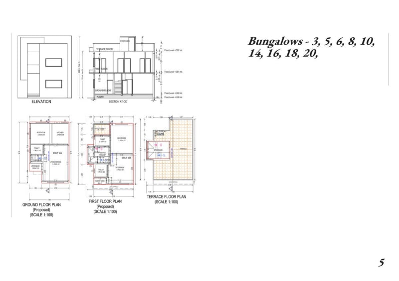
Shubh Residency 2 Phase 2 is a residential/group housing real estate project developed by Shree Narayan Buildcon, strategically located at Nh 48, Shubh Residency2, Near Shubh Residency, Nadiad, Kheda, 387001. This RERA-registered property (Registration No: PR/GJ/KHEDA/NADIAD/Nadiad Area Development Authority/RAA15493/110725/311227). Residential Bungalows
The project is professionally designed by Nirav Nareshbhai Nakrani and engineered by Aakash Kaushikbhai Mistry, ensuring quality construction and adherence to all regulatory standards. For more information about this property, interested buyers can contact Shree Narayan Buildcon directly at 7624034040.





























